Với những gia đình nhiều thế hệ cùng sinh sống với nhau, lựa chọn một căn hộ rộng rãi từ 3 phòng ngủ trở lên là lựa chọn thông minh tại dự án Florence Mỹ Đình. Thiết kế linh hoạt, bố trí hợp lý giữa các phòng ngủ, phòng khách và gian bếp hài hòa theo lối kiến trúc hiện đại, đảm bảo theo phong thủy nhà cửa. Với căn hộ 3 phòng ngủ tại dự án, quý khách hàng sẽ có nhiều lựa chọn từ căn ngủ thường diện tích 81m2 đến các căn hộ góc diện tích 85m2, 98m2, 101m2. Căn hộ góc tính giá theo hệ số góc sẽ cao hơn so với căn hộ thường, nên những căn hộ 3 ngủ thường 81m2 là lựa chọn cho hộ gia đình muốn ở căn hộ 3 ngủ nhưng tài chính còn hạn chế.
Thiết kế các căn hộ 3 phòng ngủ tại dự án Florence Mỹ Đình:

Căn hộ 3 phòng ngủ 85m2 dự án Florence Mỹ Đình

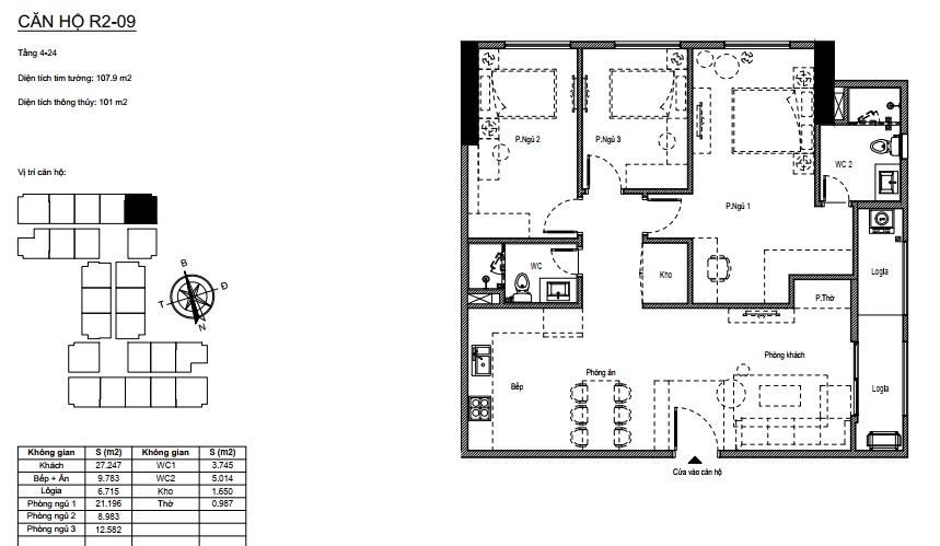
Căn hộ 3 phòng ngủ 98m2 dự án Florence Mỹ Đình

Căn hộ 3 phòng ngủ 80m2 dự án Florence Mỹ Đình

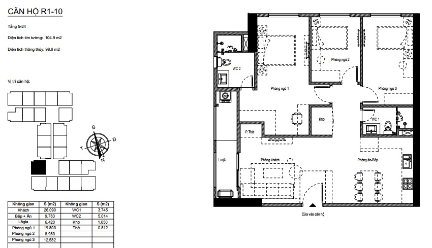
Căn hộ 3 phòng ngủ 101m2 dự án Florence Mỹ Đình
Có thể nói, Phục Hưng Holdings với kinh nghiệm 15 năm làm trong lĩnh vực thi công lắp ráp xây dựng thấu hiểu được nhu cầu của khách hàng để thiết kế những sản phẩm căn hộ đa năng và chất lượng cao, trường tồn mãi với thời gian. Chủ đầu tư cam kết tiến độ xây dựng và chất lượng dịch vụ, quản lý của công trình đầu tay Florence Mỹ Đình.
Khi mua nhà tại dự án chung cư Florence, nếu có nhu cầu về tài chính, khách hàng được hỗ trợ từ Ngân hàng Vpbank và BIDV Đông Đô với chính sách hỗ trợ vay tới 70% giá trị căn hộ, lãi suất 0% đến khi nhận nhà. Hơn nữa, do dự án đã hoàn thiện cả về thủ tục pháp lý lẫn hạ tầng nên hiện tại khách hàng mua căn hộ sẽ chỉ cần đóng 30% là có thể ký hợp đồng mua bán căn hộ.
Chung cư Florence được xây dựng cao 25 tầng nổi bao gồm 3 tầng thương mại và 20 tầng căn hộ cao cấp và 3 tầng hầm để xe. Chủ đầu tư cũng dành nhiều không gian cho cảnh quan và các tiện ích phục vụ cư dân: khu vườn dạo bộ trên cao, siêu thị, bể bơi ngoài trời, gym, spa, vườn hoa Diên Vỹ rộng hơn 1000m2…
Tham khảo thêm chính sách bán hàng, giá bán căn hộ và thiết kế,vui lòng liên hệ Hotline: 0989.446.826

Bùi Ngọc Điền - GĐKD
Điện thoại: 033.334.6688